Search

Leave a Message

Thank you for your message. I will be in touch with you shortly.

Explore My Properties

Property Description

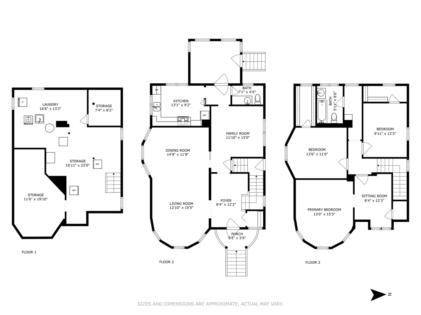
Rarely does a property this special become available. So rare, in fact, that it has only had 3 owners since it was built in 1892! This home is known for its double height rounded turret, unique roofline, and extra large 50 x 144 foot lot. Amazing vintage features abound including 7 foot solid oak pocket doors, original staircase, original window trim surrounding abundance of 6' windows, and hidden original bookcase. Hardwood floors remain under all carpeted areas. Original clapboard siding remains under 1978 aluminum siding. There is no alley behind this home and currently not a garage but YES a garage of any size can be built. Important updates include new roof 2012 and new boiler 2016. This is what Old Irving Park is all about!

Overview

Property Status
Sold
MLS ID
11991456
Property Type
Residential
Year Built
1891

Features & Amenities

Neighborhood
Old Irving Park
Garage Spaces
3.0
Water Source
Lake Michigan
Heat Type
Steam
Air Conditioning
None
Sewer
Public Sewer
School District
299
Sales Price
$640,000
Real Estate Tax
$811/yr

Downloads

3806 N Lowell Avenue

Schedule a Tour

I would love to help you see this beautiful home! As a full-service brokerage, I can help you tour. Please submit an offer, and answer questions about the buying process.

Thank you

for your interest in 3806 N Lowell Avenue, Chicago, IL 60641

3806 N Lowell Avenue
Navigate
Old Irving Park

Explore Old Irving Park

read more

I'm Interested In

3806 N Lowell Avenue

or
  • CallCara Buffa

    License #475155015

    (312) 593-2608
  • pretitle

    Featured Properties

    • 3830 N LOWELL Avenue For Sale

      $1,899,000

      3830 N LOWELL Avenue, Chicago, IL 60641

      • 6 Beds
      • 6 Baths
      • 5,300 Sq.Ft.
    • 3708 N Kenneth Avenue For Sale

      $699,000

      3708 N Kenneth Avenue, Chicago, IL 60641

      • 4 Beds
      • 3 Baths
      • 3,000 Sq.Ft.
    View All Properties

    Follow Me on Instagram